Grethe Løland Grethe Løland

Takk for diskusjonen!

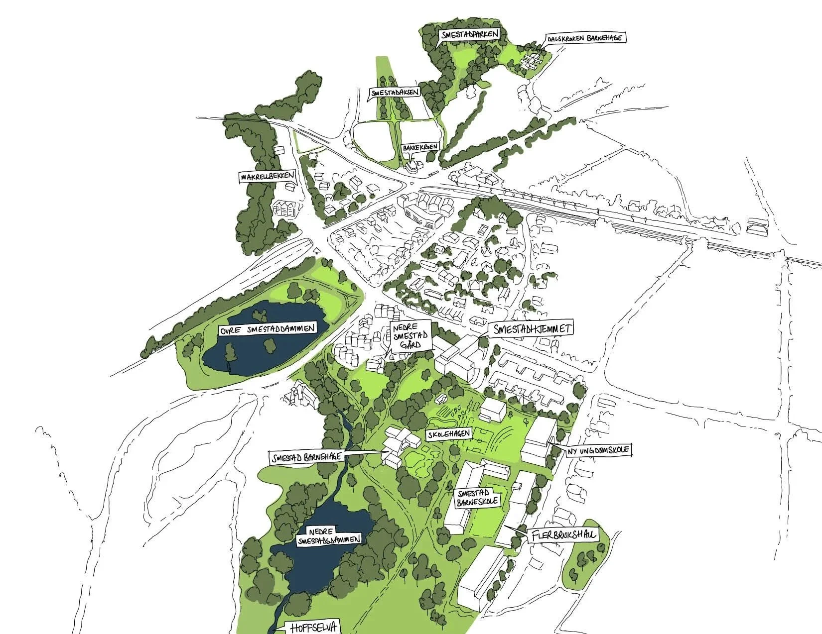
Tirsdag 26. august ble nabolaget invitert til et møte på Bakkekroen. Møtet ga en anledning til å gå gjennom området, diskutere utfordringer og dele synspunkter i fellesskap.

Read More
Grethe Løland Grethe Løland

Smestad - Hva nå?

Vi inviterer til nabolagsvandring, med påfølgende samtale og lett servering på Bakkekroen.

Tirsdag 26. August kl 16:00 - 19:00, oppmøte Bakkekroen

Read More